flatscraper - logo
Rezidencia Potôčik
Rezidencia Potôčik - map
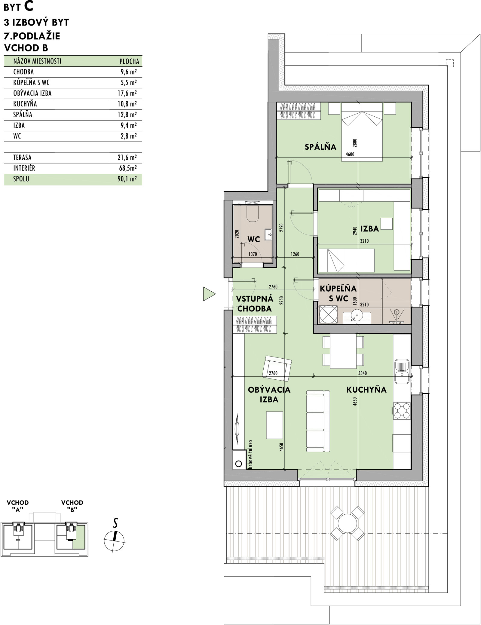
byt:
C7
Mesto / Obec:
Typ:
3-izbový byt
Poschodie:
7.NP
Rozloha:
68.5 m²
Exteriér:
21.6 m²
Cena:
231 499 €
Dostupnosť:
voľný
Moja Nehnuteľnosť
Profesionálna kalkulačka pre investície do nehnuteľností
Rezidencia Potôčik - C7 - Pôdorys
zdroj: https://potocik.sk/ponuka/siedme-nadzemne-podlazie-penthouses/c7-penthouse/