flatscraper - logo
Byty na Hornej
Byty na Hornej - map
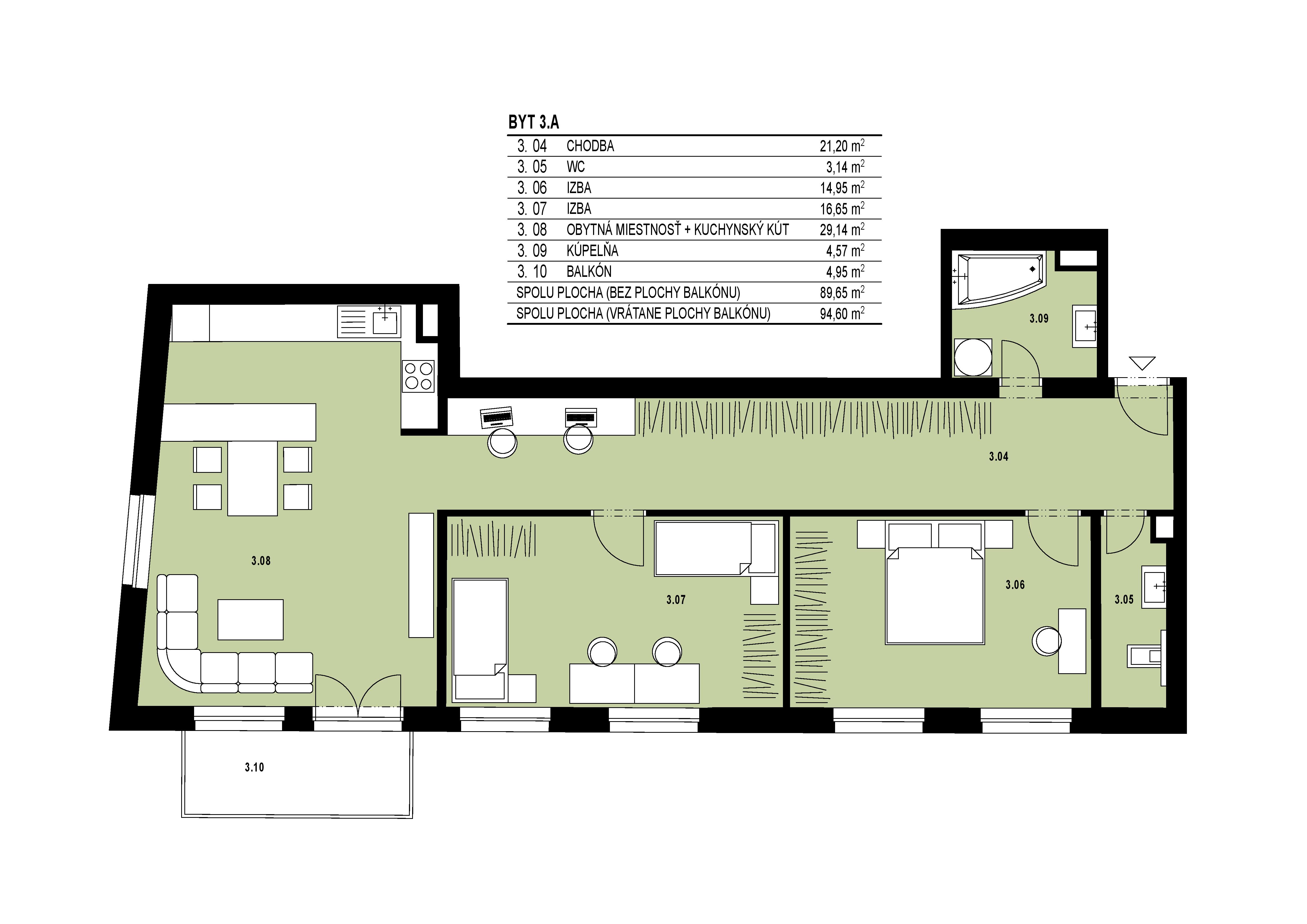
byt:
Projekt:
Mesto / Obec:
Typ:
3-izbový byt
Poschodie:
3.NP
Rozloha:
94.6 m²
Cena:
-
Dostupnosť:
voľný
Moja Nehnuteľnosť
Profesionálna kalkulačka pre investície do nehnuteľností
Byty na Hornej - 3.A - Pôdorys
zdroj: https://www.bytynahornej.sk