flatscraper - logo
Rezidencia Suchý Vrch
Rezidencia Suchý Vrch - map
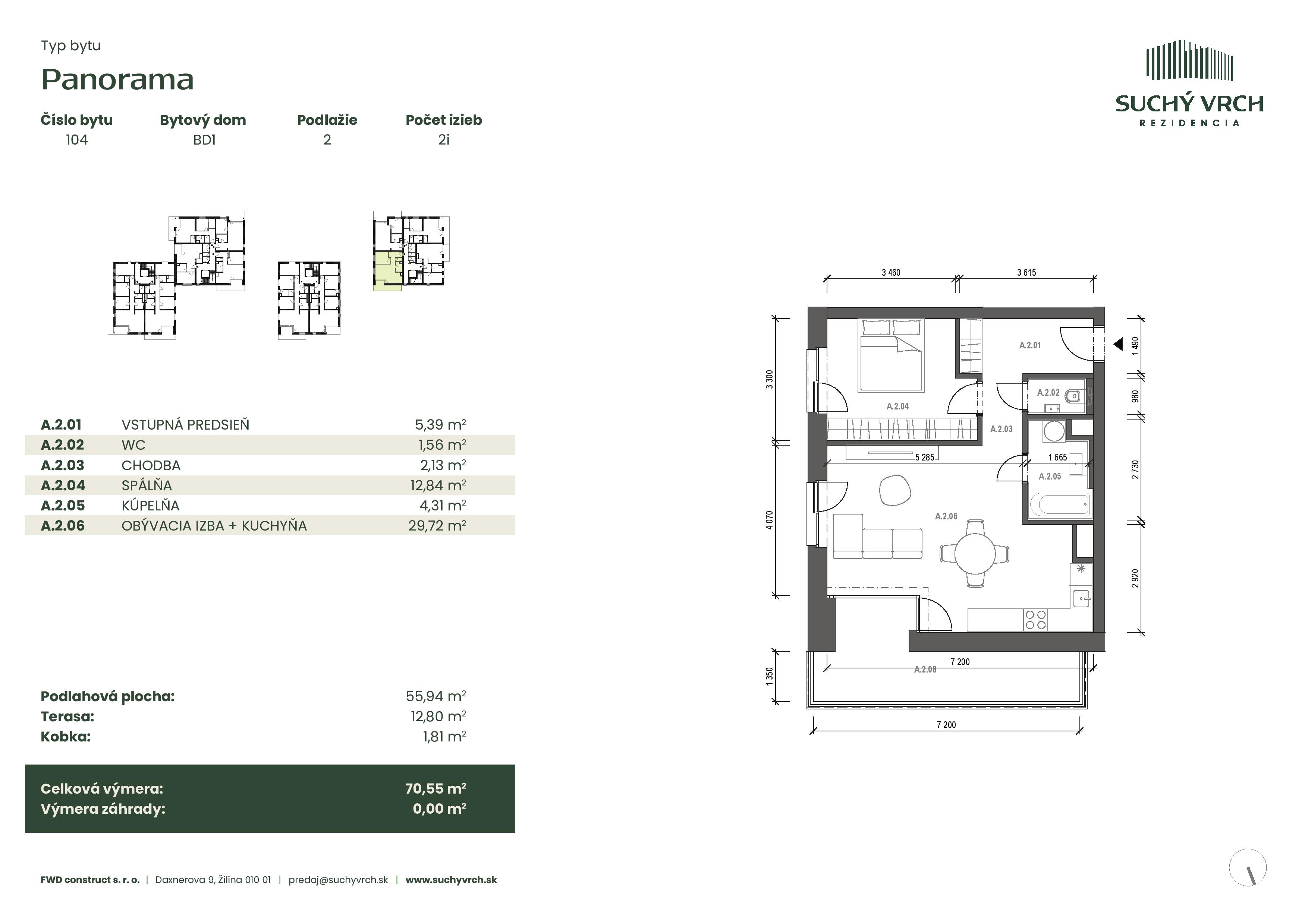
byt:
104
Budova:
BD1
Mesto / Obec:
Typ:
2-izbový byt
Poschodie:
2.NP
Rozloha:
63.31 m²
Cena:
244 900 €
Dostupnosť:
voľný
Moja Nehnuteľnosť
Profesionálna kalkulačka pre investície do nehnuteľností
Rezidencia Suchý Vrch - 104 - Pôdorys
zdroj: https://www.suchyvrch.sk/byt/104