Danubius
Danubius - map
Oficiálna stránka bytu
byt
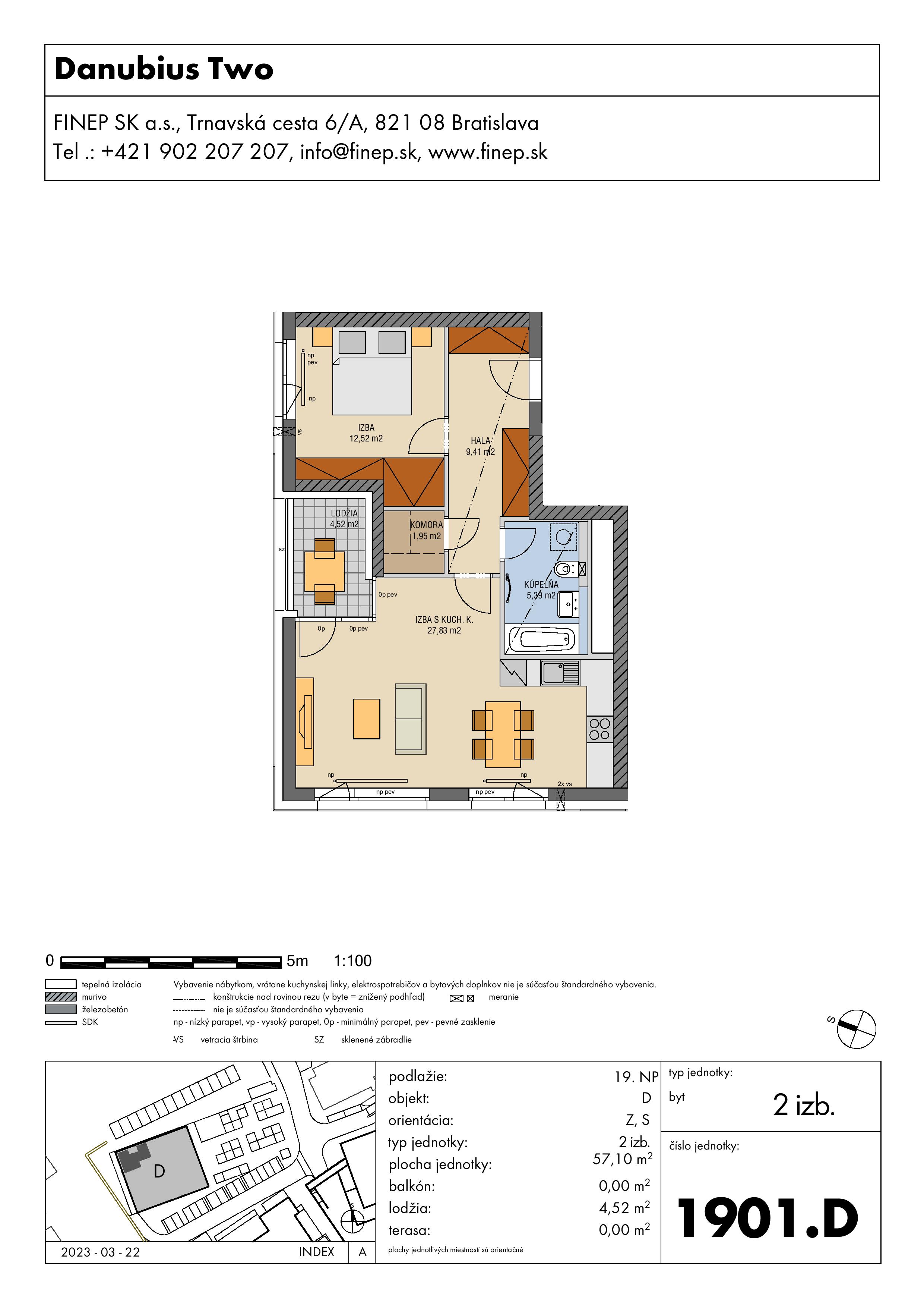
1901.D
budova
Danubius Two
projekt
mesto / obec
typ
2-izbový byt
poschodie
19.NP
interiér
57.NP
pozemok
-
lodžia
4.5 m²
351 972 €
voľný
Vypočítať návratnosť