flatscraper - logo
Green Atrium
Green Atrium - map
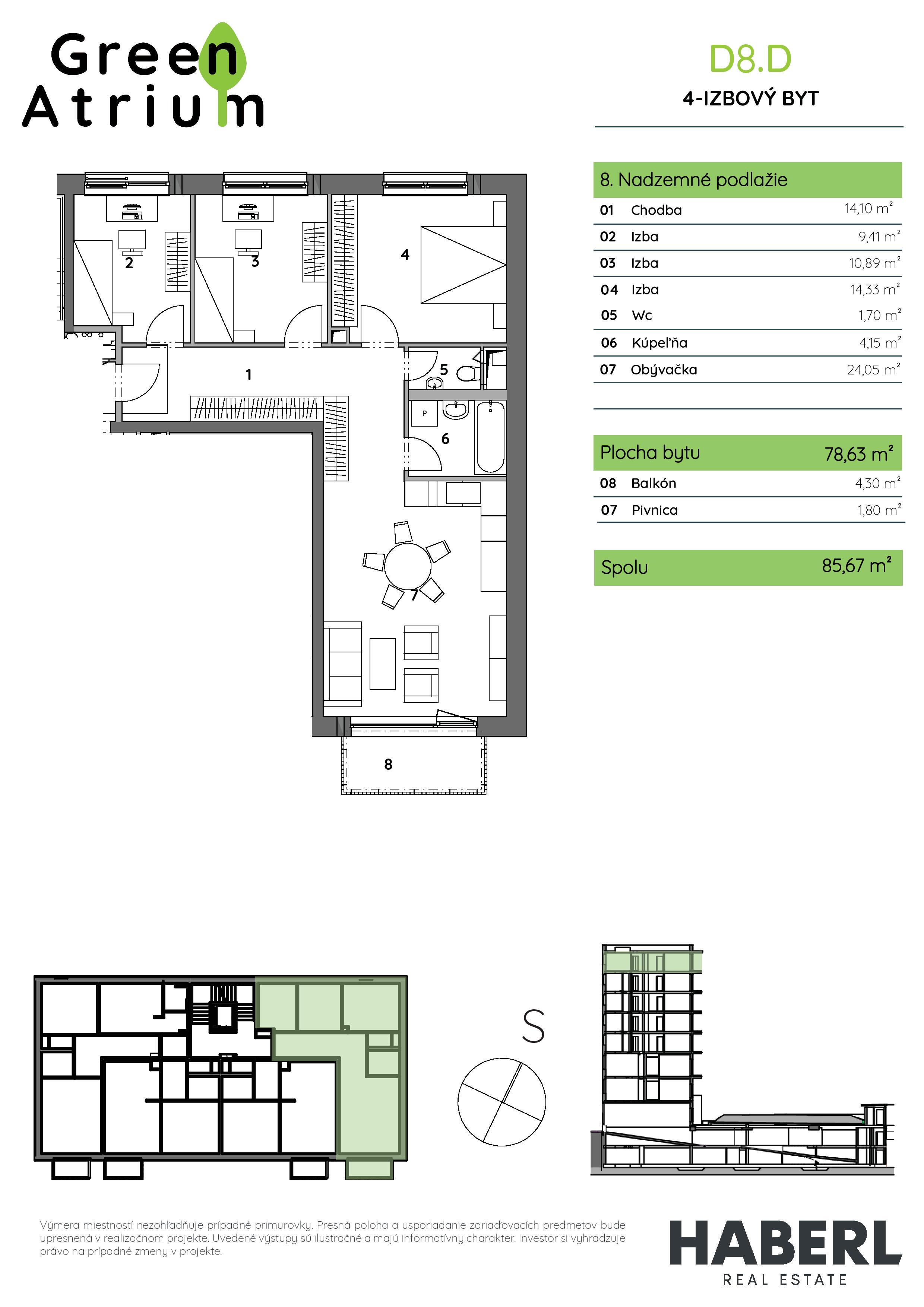
byt:
8D
Budova:
D
Projekt:
Mesto / Obec:
Typ:
4-izbový byt
Poschodie:
8.NP
Rozloha:
78.63 m²
Exteriér:
4.3 m²
Cena:
512 380 €
Dostupnosť:
voľný
Moja Nehnuteľnosť
Profesionálna kalkulačka pre investície do nehnuteľností
Green Atrium - 8D - Pôdorys
zdroj: https://www.bytygreenatrium.sk/flat/d8d/