flatscraper - logo
Nový Ružinov
Nový Ružinov - map
byt:
Budova:
Miranda A
Projekt:
Mesto / Obec:
Typ:
2-izbový byt
Poschodie:
6.NP
Rozloha:
41.44 m²
Exteriér:
16.44 m²
Cena:
240 465 €
Dostupnosť:
voľný
Moja Nehnuteľnosť
Profesionálna kalkulačka pre investície do nehnuteľností
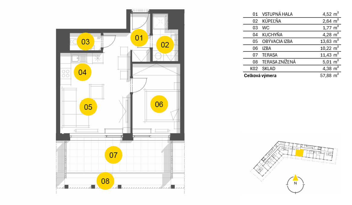
Nový Ružinov - C1.7.07 - Pôdorys
zdroj: https://www.novyruzinov.sk/cennik/34061583