Portum Towers
Portum Towers - map
Oficiálna stránka bytu
byt
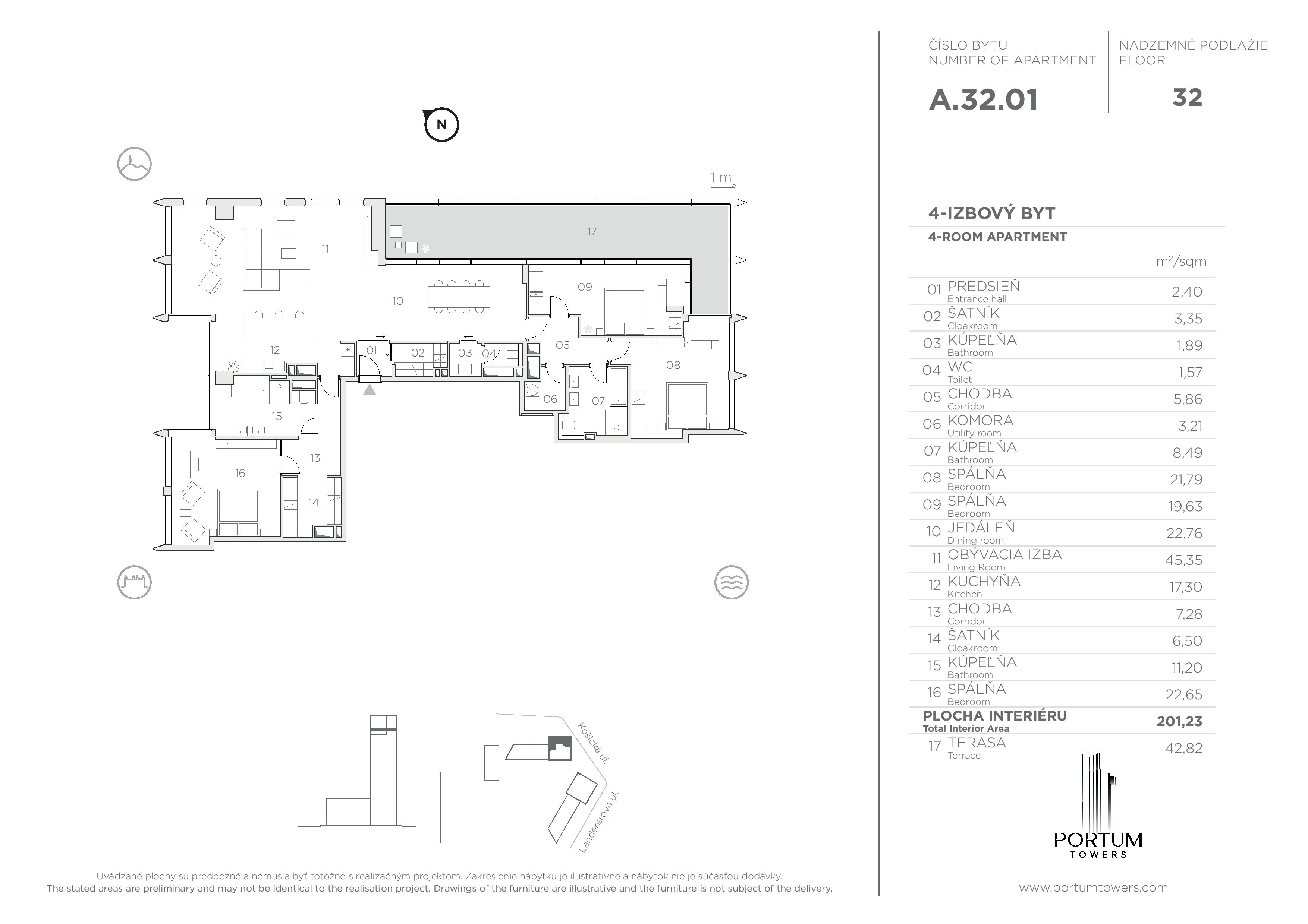
A.32.01
budova
-
projekt
mesto / obec
typ
4-izbový byt
poschodie
32.NP
interiér
201.NP
-
voľný