White Square
White Square - map
Oficiálna stránka bytu
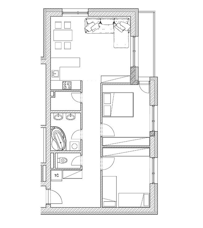
byt
4D
budova
-
projekt
mesto / obec
typ
3-izbový byt
poschodie
3.NP
interiér
71.NP
pozemok
-
lodžia
4.73 m²
170 821 €
voľný
Vypočítať návratnosť