flatscraper - logo
Rezidencia Podhradová
Rezidencia Podhradová - map
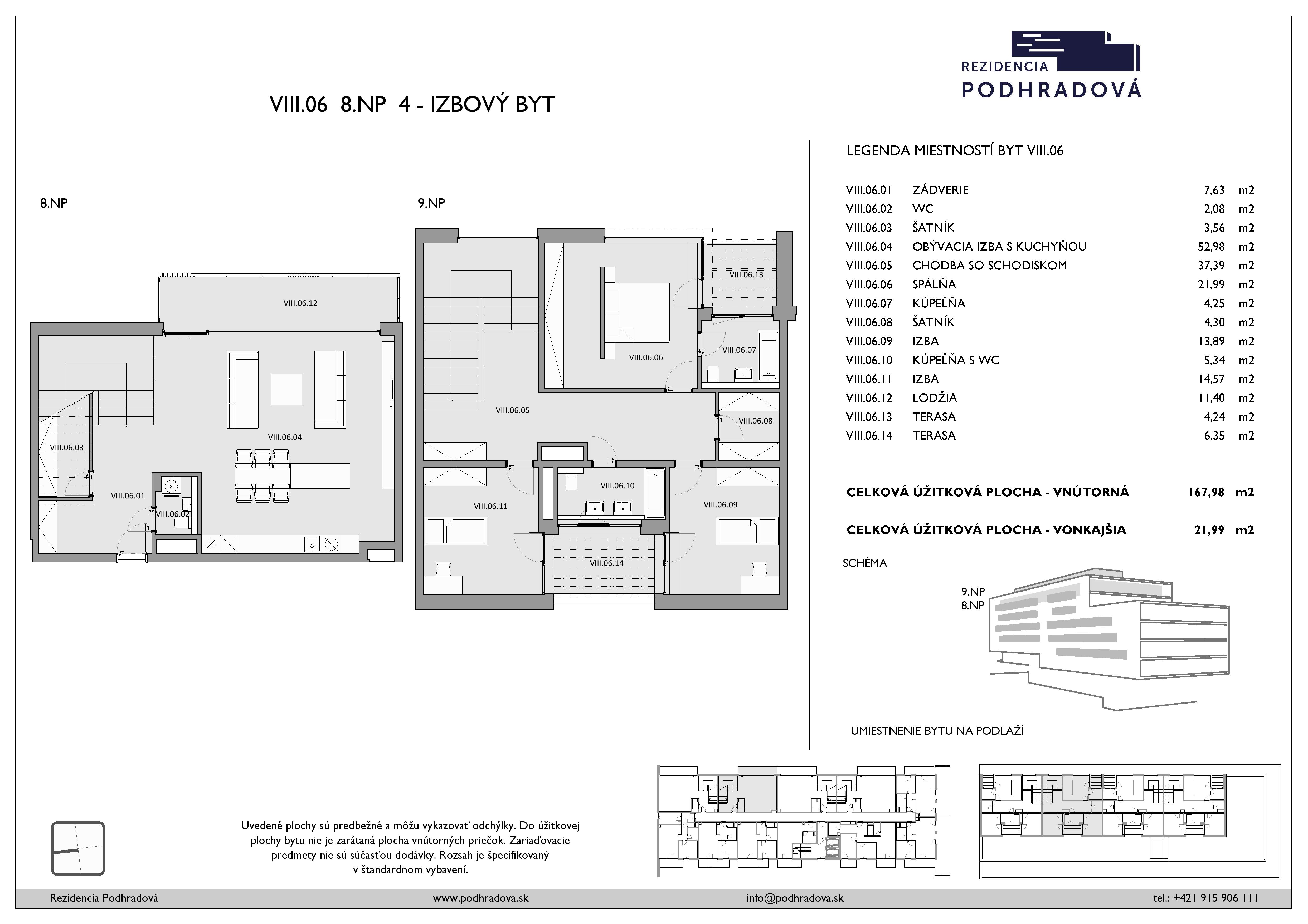
byt:
806
Mesto / Obec:
Typ:
4-izbový byt
Rozloha:
167.98 m²
Lodžia:
11.4 m²
Terasa:
10.59 m²
Cena:
-
Dostupnosť:
voľný
Moja Nehnuteľnosť
Profesionálna kalkulačka pre investície do nehnuteľností
Rezidencia Podhradová - 806 - Pôdorys
zdroj: https://podhradova.sk/priestory/byt-806/