flatscraper - logo
Galandov majer
Galandov majer - map
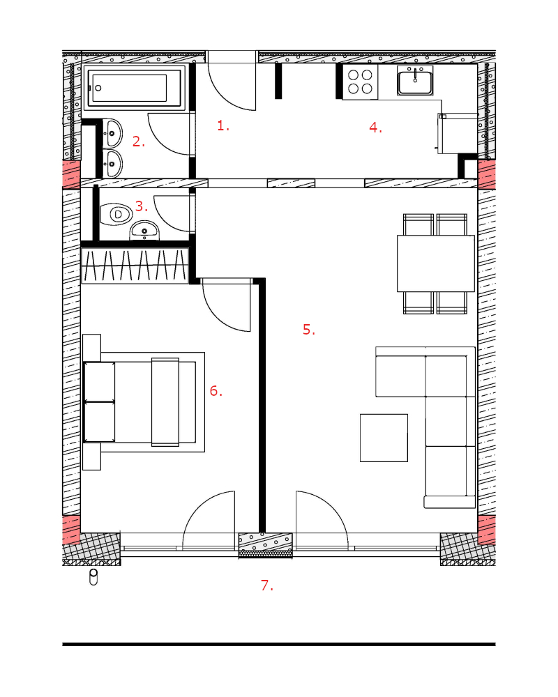
byt:
Projekt:
Mesto / Obec:
Typ:
2-izbový byt
Poschodie:
3.NP
Rozloha:
60.56 m²
Cena:
126 600 €
Dostupnosť:
voľný
Moja Nehnuteľnosť
Profesionálna kalkulačka pre investície do nehnuteľností
Galandov majer - K22.3.1 - Pôdorys
zdroj: https://galandovmajer.sk/byt/k22-3-1/