flatscraper - logo
ZICHER
ZICHER - map
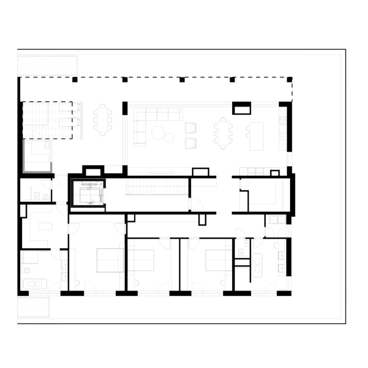
byt:
Projekt:
Mesto / Obec:
Typ:
4-izbový byt
Poschodie:
6.NP
Rozloha:
406.2 m²
Cena:
-
Dostupnosť:
voľný
Moja Nehnuteľnosť
Profesionálna kalkulačka pre investície do nehnuteľností
ZICHER - 31A E 03 - Pôdorys
zdroj: https://www.bytyzicher.sk/byt/penthouse/