flatscraper - logo
Anna Park
Anna Park - map
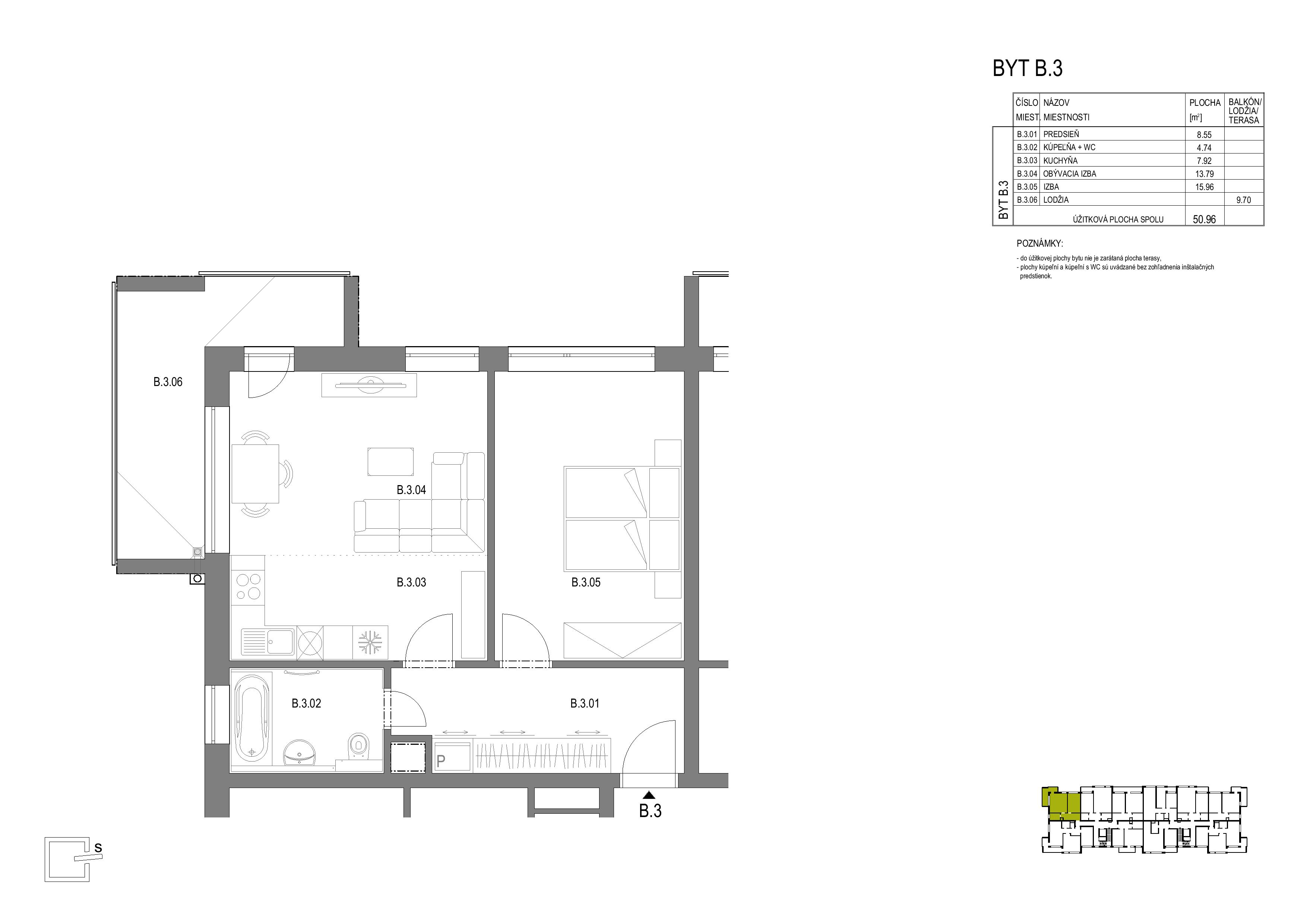
byt:
Budova:
Sq36 03
Projekt:
Mesto / Obec:
Typ:
2-izbový byt
Poschodie:
3.NP
Rozloha:
50.96 m²
Exteriér:
9.7 m²
Cena:
153 990 €
Dostupnosť:
voľný
Moja Nehnuteľnosť
Profesionálna kalkulačka pre investície do nehnuteľností
Anna Park - B.3 - Pôdorys
zdroj: https://annapark.sk