flatscraper - logo
Brokoffova residence
Brokoffova residence - map
dom:
B09
Mesto / Obec:
Typ:
4-izbový dom
Rozloha:
125 m²
Cena:
340 000 €
Dostupnosť:
voľný
Moja Nehnuteľnosť
Profesionálna kalkulačka pre investície do nehnuteľností
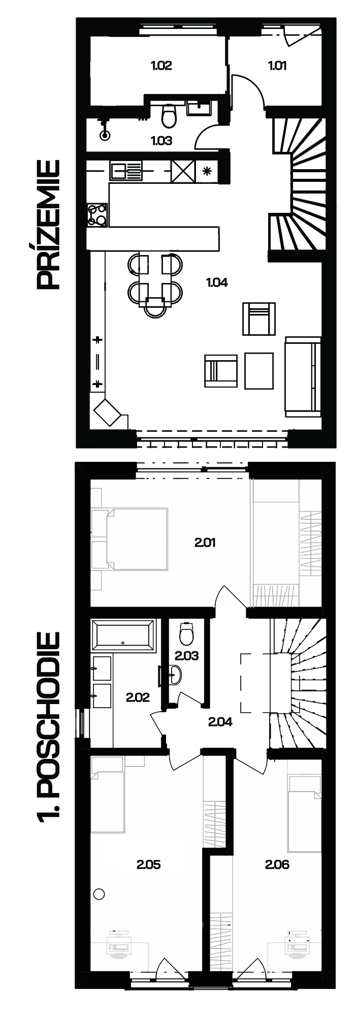
Brokoffova residence - B09 - Pôdorys
zdroj: https://www.brokoffova.sk/index.php/dom-r01/