Karpatská Residence
Karpatská Residence - map
Oficiálna stránka bytu
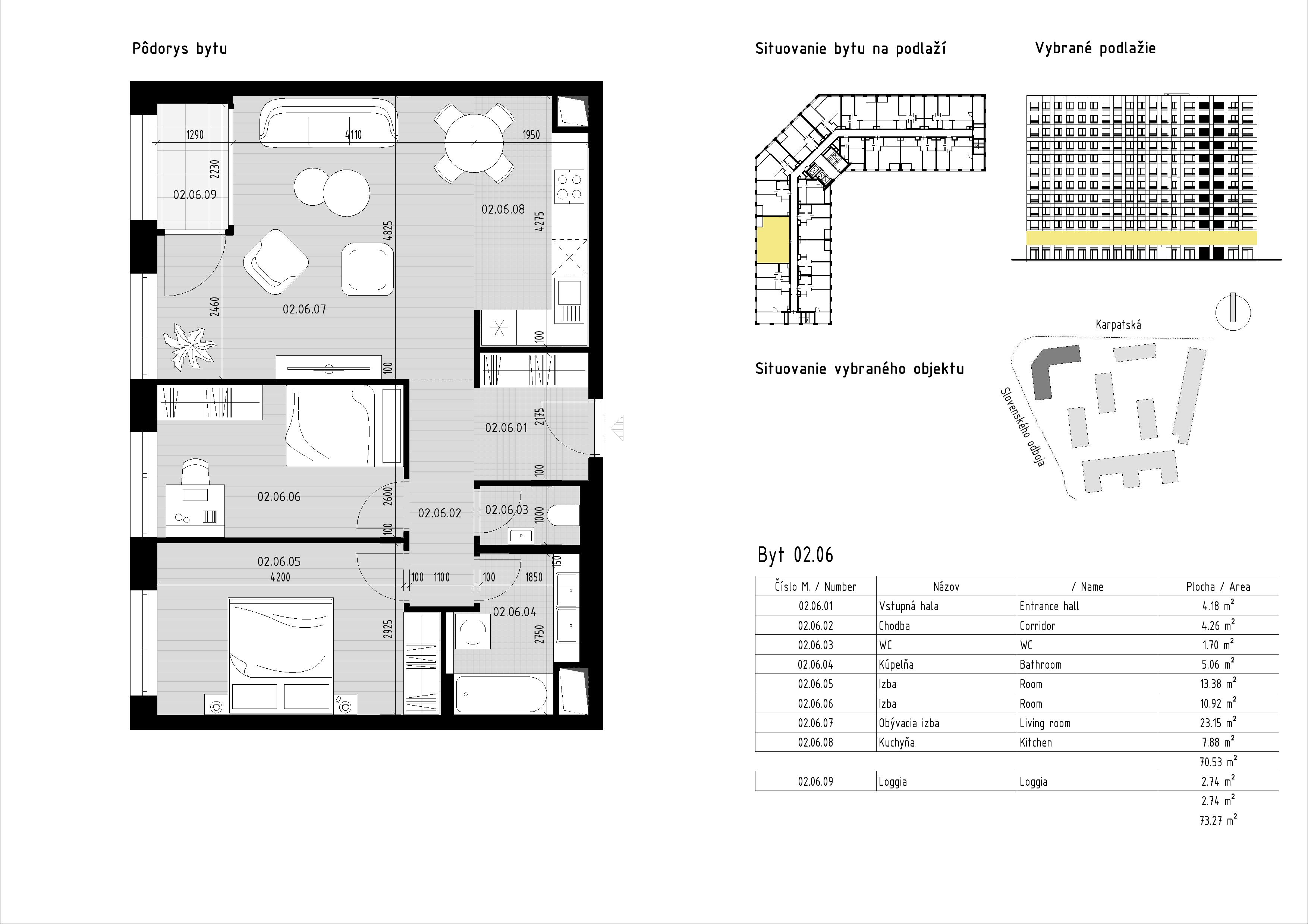
byt
2.06
budova
-
mesto / obec
typ
3-izbový byt
poschodie
2.NP
interiér
70.NP
balkón
2.74 m²
-
voľný