flatscraper - logo
Karpatská Residence
Karpatská Residence - map
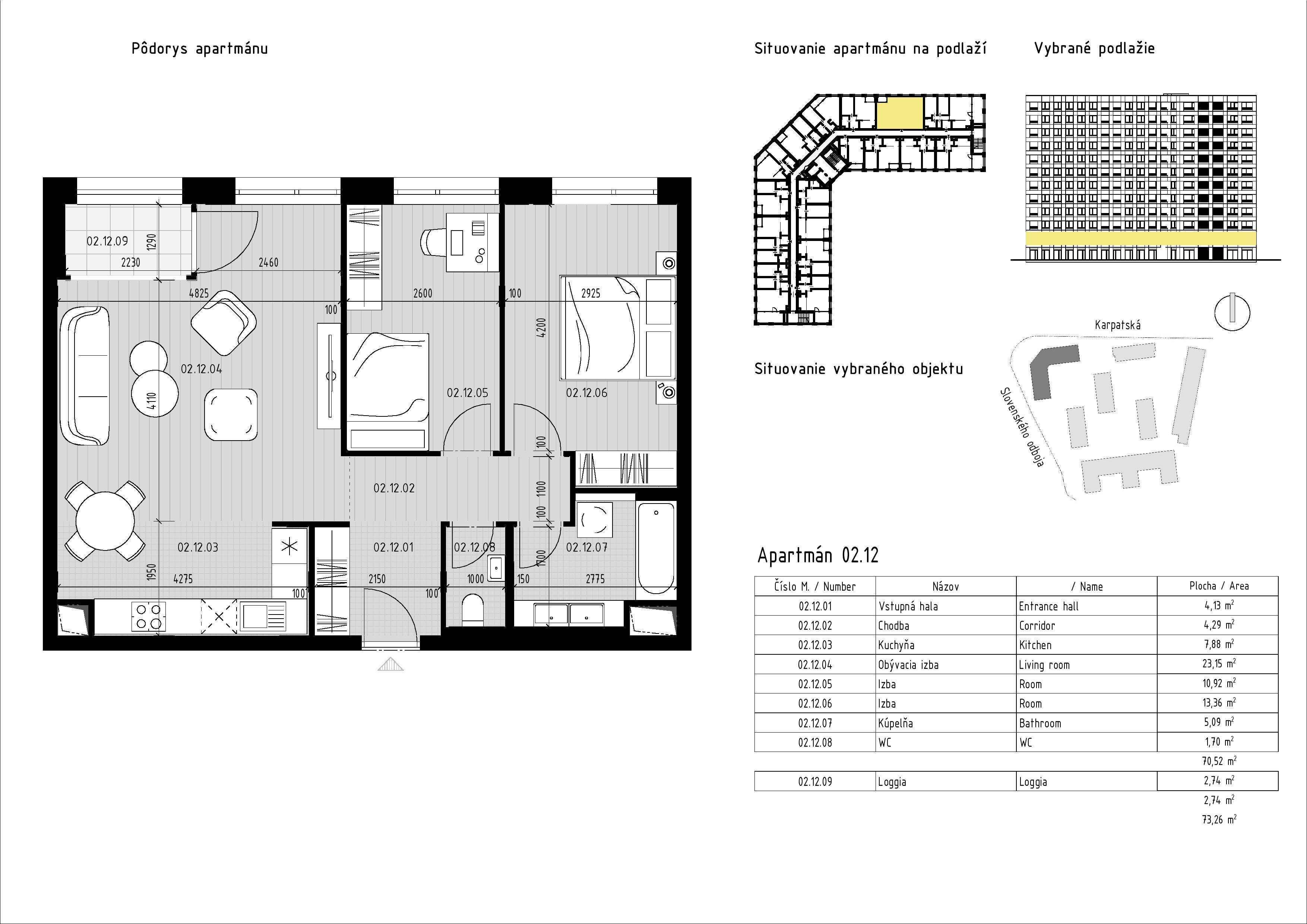
byt:
Mesto / Obec:
Typ:
3-izbový byt
Poschodie:
2.NP
Rozloha:
70.52 m²
Balkón:
2.74 m²
Cena:
-
Dostupnosť:
voľný
Moja Nehnuteľnosť
Profesionálna kalkulačka pre investície do nehnuteľností
Karpatská Residence - 2.12 - Pôdorys
zdroj: https://sccpoprad.sk/byt-02-12