flatscraper - logo
Luna Residence
Luna Residence - map
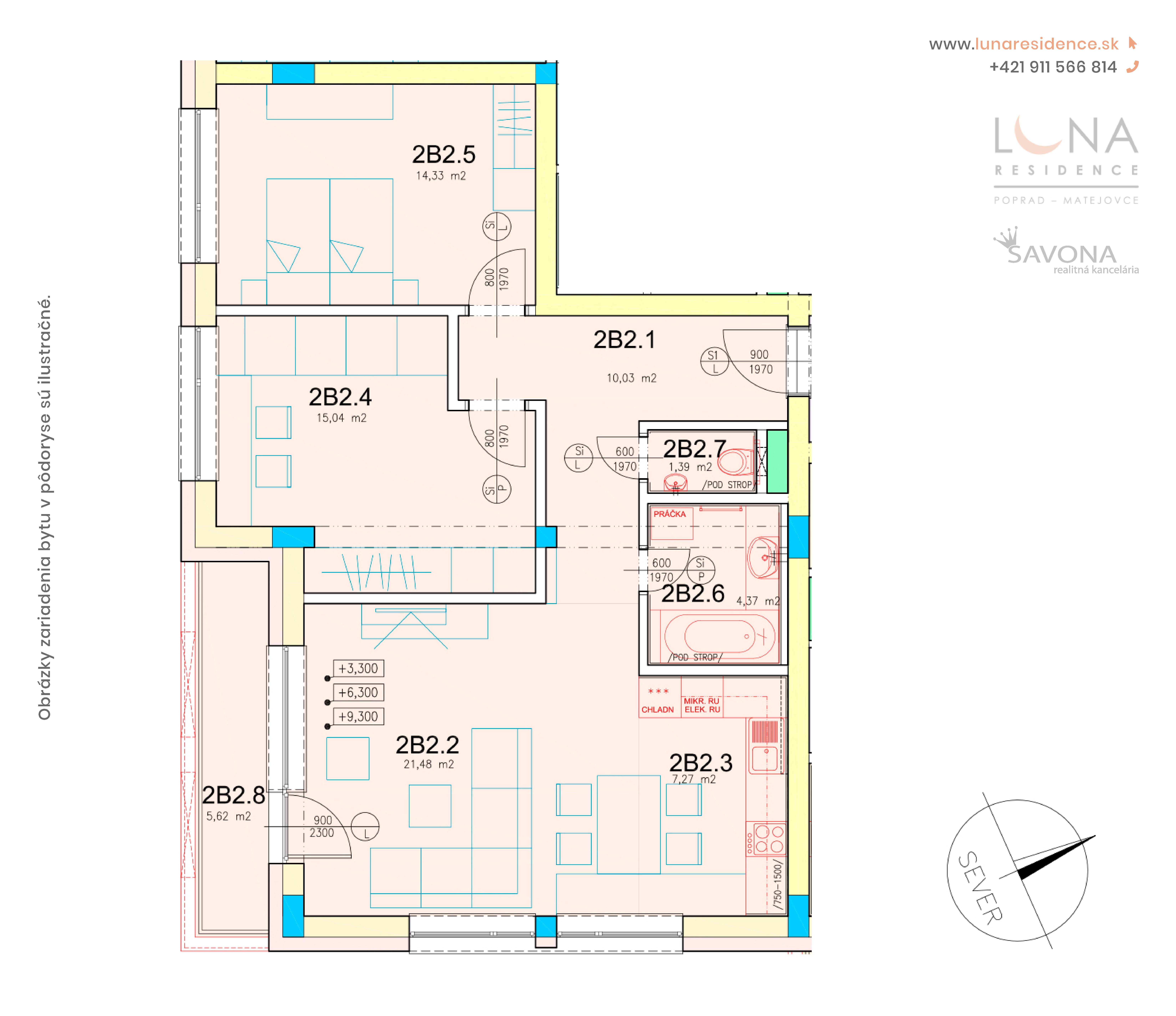
byt:
Budova:
B
Projekt:
Mesto / Obec:
Typ:
3-izbový byt
Poschodie:
2.NP
Rozloha:
73.91 m²
Exteriér:
5.62 m²
Cena:
180 480 €
Dostupnosť:
voľný
Moja Nehnuteľnosť
Profesionálna kalkulačka pre investície do nehnuteľností
Luna Residence - 2B 02 - Pôdorys
zdroj: https://lunaresidence.sk/projekt/bytovy-dom-b/byt-b02-2-np/