flatscraper - logo
Hríby
Hríby - map
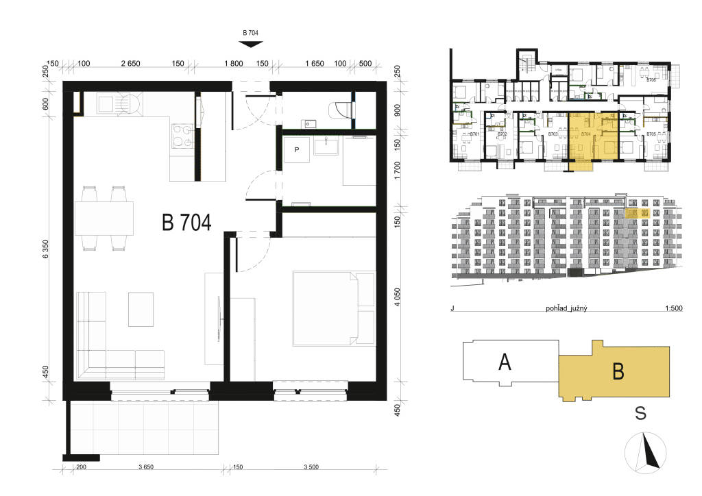
byt:
Projekt:
Mesto / Obec:
Typ:
2-izbový byt
Poschodie:
7.NP
Rozloha:
55.69 m²
Balkón:
4.83 m²
Cena:
149 055 €
Dostupnosť:
voľný
Moja Nehnuteľnosť
Profesionálna kalkulačka pre investície do nehnuteľností
Hríby - B704 - Pôdorys
zdroj: https://www.bytyhriby.sk/byt/dvojizbovy-byt-ruzomberok-b704/