flatscraper - logo
Hríby
Hríby - map
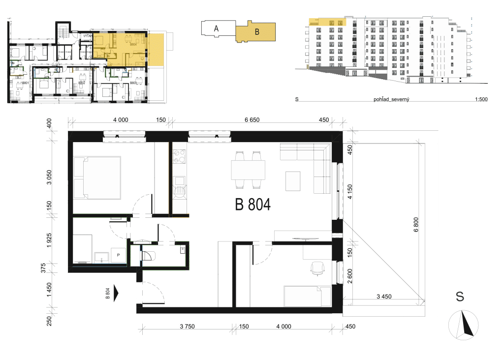
byt:
Projekt:
Mesto / Obec:
Typ:
3-izbový byt
Poschodie:
8.NP
Rozloha:
92.64 m²
Terasa:
23.46 m²
Cena:
211 755 €
Dostupnosť:
voľný
Moja Nehnuteľnosť
Profesionálna kalkulačka pre investície do nehnuteľností
Hríby - B804 - Pôdorys
zdroj: https://www.bytyhriby.sk/byt/trojizbovy-byt-ruzomberok-b804/