Za Južnou
Za Južnou - map
Oficiálna stránka bytu
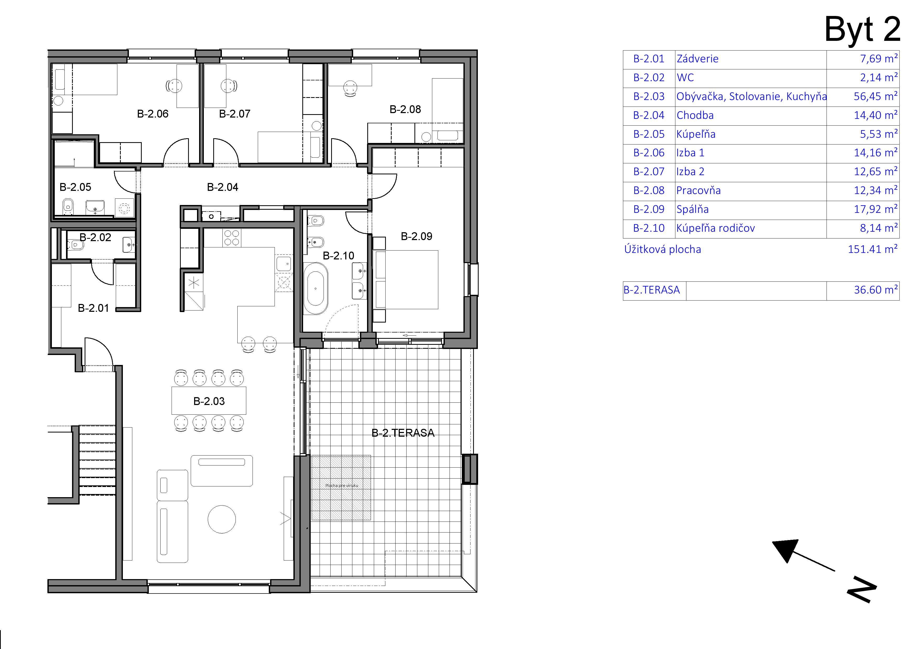
byt
2
budova
-
projekt
mesto / obec
typ
5-izbový byt
poschodie
1.NP
interiér
151.NP
terasa
36.6 m²
470 000 €
voľný
Vypočítať návratnosť