flatscraper - logo
Trikota Vrbové
Trikota Vrbové - map
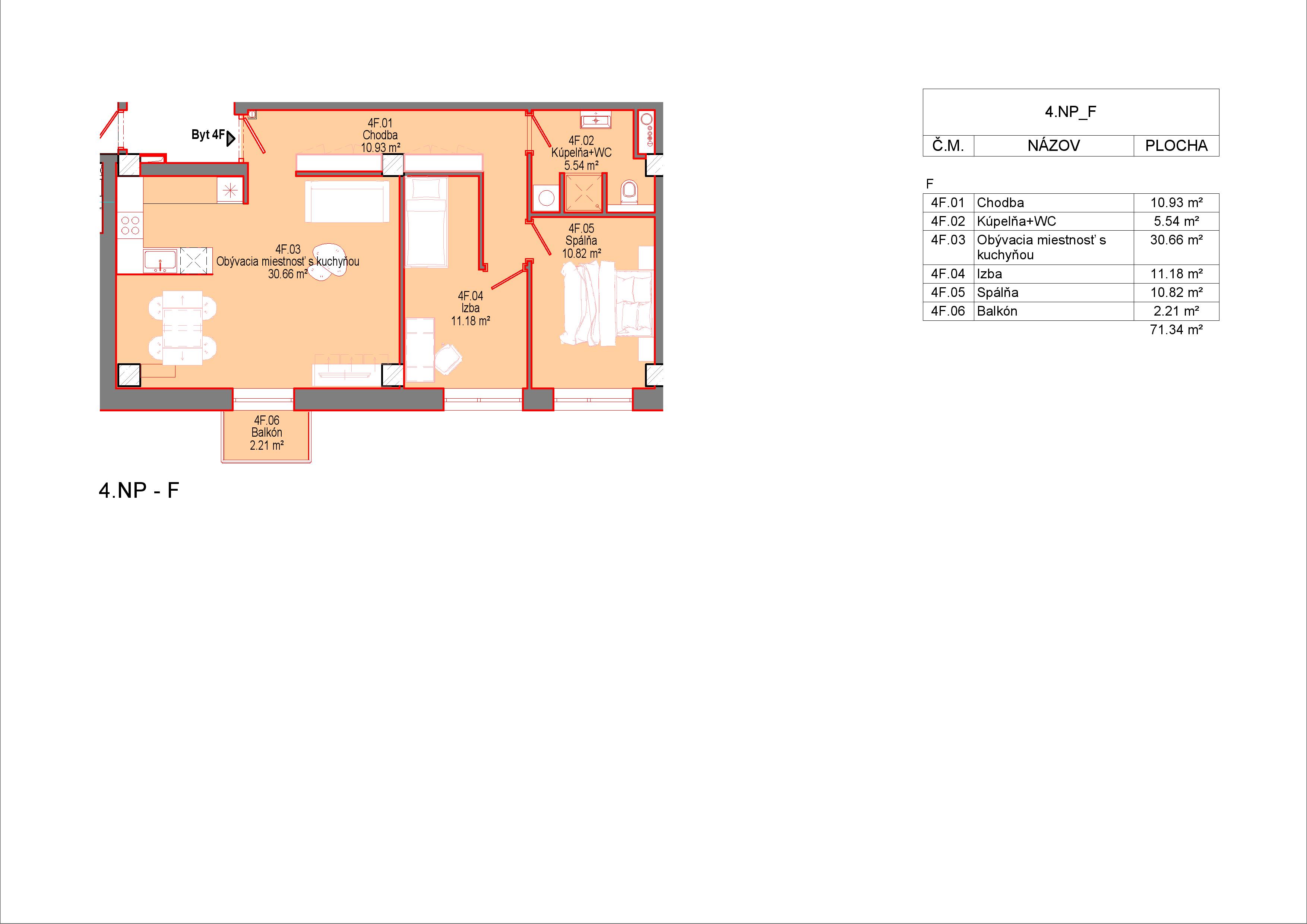
byt:
4F
Projekt:
Mesto / Obec:
Typ:
3-izbový byt
Poschodie:
4.NP
Rozloha:
73.77 m²
Cena:
146 000 €
Dostupnosť:
voľný
Moja Nehnuteľnosť
Profesionálna kalkulačka pre investície do nehnuteľností
Trikota Vrbové - 4F - Pôdorys
zdroj: https://bytytrikota.sk/predaj-bytov/byt-4f